Ready for the next step in campus living — a little more space with the same great convenience? Cedarville’s Student Communities housing options are designed for just that. Whether you’re moving in with friends, settling into married life, or focusing on grad school, you’ll find options that blend comfort, independence, and connection — all in close proximity to campus!
Each housing community follows the Student Communities Guidelines and is billed by semester. Provided utilities vary by community, and while meal plans aren’t required, you can add one if you’d like.
Cedarville University Apartments
If you’re ready for more freedom but still want the convenience of University housing, the new apartments are a great next option.
Four apartment buildings — each with three floors and four single-gender units per floor — create a close-knit community where it’s easy to balance study and life. Each two-bedroom, two-bathroom unit houses four students and includes bunkable beds, two double-drawer dressers, two closets, a standard kitchen, and an in-unit washer and dryer.
Every unit is gender-specific and secured with secure building access (proximity key card) and keyed entry for each unit and room.
The apartments are scheduled to open in fall 2026.
At a Glance:
- Two bedrooms / two bathrooms per unit
- Four residents per unit
- Bunkable beds, two double-drawer dressers, and closet space for each resident
- Washer/dryer included in unit
- Standard kitchen including microwave
- Parking available
- Electricity, water, sewer, and wireless internet included
- Available to students age 20–26

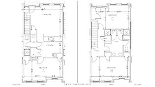
Townhouses
For many students, the on-campus townhouses offer the perfect mix of campus convenience and apartment-style living. Rooke Hall and Gromacki Hall each include nine townhouses with three double rooms per single-gender unit — housing six students per unit. Every townhouse has a standard kitchen, a furnished living room, and an in-unit washer and dryer.
At a Glance:
- Six residents per unit (double occupancy)
- Bed and mattress, desk and chair, dresser, and closet provided for each resident
- Standard kitchen
- Furnished living room
- Washer and dryer provided in-unit
- Parking available
- Electricity, water, sewer, and wireless internet included
- Available to students age 20–29
Sample Room
-
Room Layout
View the room layout and dimensions for a sample room in this residence hall.View the Dimensions
Married Student Housing
Just a few minutes south of campus in the Village of Cedarville, Cedar Park offers a peaceful, family-friendly setting for married students.
This community includes 21 units — 19 two-bedroom and two three-bedroom apartments — each with a standard kitchen and a large parking lot. You'll bring your own furniture and personalize your space to fit your style.
One spouse must be enrolled full time, and housing operates on a waitlist system, with placement handled in order through eRezLife. It’s a convenient, supportive option for couples balancing school and life together.
At a Glance:
- 21 units (two with three bedrooms each / 19 with two bedrooms each)
- Standard kitchen
- Parking available
- Utilities billed separately

Graduate Student Housing
Off-campus graduate housing gives you the privacy you need and the community you desire. Separate spaces for men and women offer quiet, furnished rooms and comfortable shared areas, all within walking distance of campus.
At a Glance:
- Nine single-occupancy rooms per house
- Bed and mattress, desk and chair, dresser, and closet provided per resident
- Shared kitchen includes refrigerator/freezer, oven/stove, and table and chairs
- Common space includes one couch and two chairs
South Hall (Female Only)
South features nine single-occupancy units for female graduate students. Each room includes a bed, desk, dresser, and closet. A shared kitchen with full appliances and a cozy common lounge make it easy to connect when you want to. Parking is available.
Harriman Hall (Male Only)
Harriman offers nine single-occupancy rooms for male graduate students furnished with the same essentials. Shared kitchen and lounge spaces make it easy to relax or study with classmates after a full day. Parking is available.
Shrubsole House (Male Only)
Shrubsole houses 11 male students in a community-style, on-campus home, including six rooms — one single and five doubles — a comfortable living room (furnished), and a standard kitchen with a dining table for six.
Each bedroom is fully furnished with a bed and mattress, desk and chair, and a dresser for each resident, so moving in is simple. With parking available for every resident, Shrubsole offers both independence and camaraderie in a friendly, relaxed space.
At a Glance:
- Six bedrooms (one single / five double)
- 11 residents
- Bed with mattress, dresser, and desk provided per resident
- Standard kitchen with table and six chairs
- Furnished living room
- Parking available
- Electricity, water, sewer, and wireless internet included
- Available to students age 20–29

Choosing Your Community
Whether you’re ready for a quieter space, excited to live with friends, or looking for a place to call home with your spouse, there’s a community built for you. Think about what matters most — location, privacy, or connection — and you’ll find your fit.
eRezLife
eRezLife is the online housing system Cedarville uses to manage housing in our residence halls and Student Communities. Through eRezLife, you’ll complete everything from creating your student profile to selecting your room or unit. You can even form groups with friends or connect with potential roommates using Roommeez, a matching tool that pairs students based on interests and living preferences.
When making housing selections in eRezLife, you’ll use the Groups feature to fill spaces with the friends you want to live with. You can create a group, invite others to join, and then select your housing together, making it easy to secure a space as a unit.
All housing selections, including apartments, townhouses, Shrubsole, graduate housing, and married student housing, will be managed through this platform. The eRezLife system makes it easy to view available spaces, sign up, and stay connected with Residence Life throughout the semester.
Group Size at a Glance
| Community | Bedrooms per Unit | Total Beds per Unit | Group Size |
|---|---|---|---|
| Apartments | 2 bedrooms | 4 | 2 or 4 students per group |
| Townhouses (Rooke and Gromacki) | 3 bedrooms | 6 | 6 students per group |
| Shrubsole (male) | 6 bedrooms (1 single + 5 doubles) | 11 | 11 students, must fill all spots to confirm placement |
| Graduate Housing – South (female) | 9 single rooms | 9 | 9 students, each fills their own room |
| Graduate Housing – Harriman (male) | 9 single rooms | 9 | 9 students, each fills their own room |
| Married Housing (Cedar Park) | 2–3 bedrooms | n/a | Assigned by couple/family; groups not required |
| The gender of each unit for apartments and townhouses will be based on the student who fills the first bed in the unit. Once assigned, the unit becomes gender-specific for the whole space — there will be no mixing of genders within the same unit in an apartment or townhouse. | |||
Important: Your group must meet the full occupancy requirement for the space in order for the entire space to be occupied. For example, a townhouse has six beds. If your group only has five people, your spot will not be confirmed until a sixth member joins. A complete group of six will always receive priority for that unit.
If you need to change your assignment, you must email the Housing Coordinator before making any changes.

